Veľkorysý 5-izbový rohový dom s pozemkom do 400m2, 3 parkovacie miesta, oplotenie a tepelné čerpadlo

Predaj

259,000 

O ponuke

Viac ako len dom – 5 izieb slobody pre vašu rodinu. Rodinný dom, ktorý vám vydrží generácie.
Predstavte si domov, kde deti behajú po vlastnej záhrade, večer si vychutnáte pohár vína na terase a vďaka moderným technológiám nemusíte myslieť na vysoké účty.

Ponúkame vám 5-izbový rodinný dom v obci Štvrtok na Ostrove, ktorý je súčasťou dvojdomu, no vďaka samostatnému vstupu a vlastnému pozemku budete mať plné súkromie.
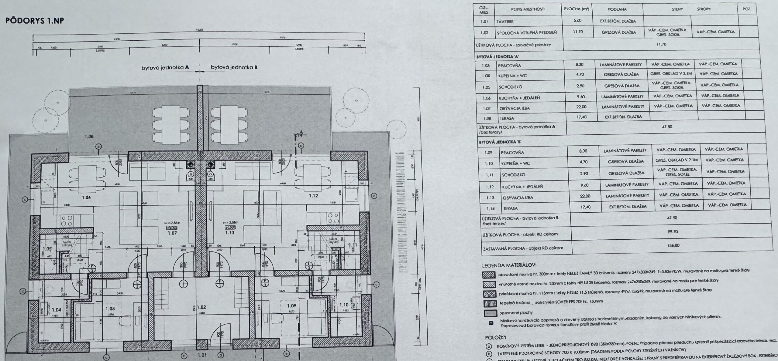
Hlavné parametre:
-úžitková plocha domu: 105 m²
-terasa: 15 -20m²
-počet izieb: 5
-pozemok: do 400 m²

Stav dokončenia: holodom alebo možnosť dokončenia podľa vašich predstáv.

Technické riešenie:
-tehlová konštrukcia so zateplením EPS (150mm)
-väzníková strecha s úložným podkrovným priestorom-škridla Meditteran
-plastové okná 8-komorové AluPlast(trojsklo)
-kvalitné tepelné čerpadlo – energeticky úsporné riešenie
-podlahové vykurovanie v celom dome
-maľovka, zásuvky a vypínače v celom dome
-zábradlie na schodisku
-predpríprava na klimatizáciu, krb a optiku
-všetky inžinierske siete: voda, kanalizácia, elektrina, optika, studňa ( kvalitná voda žitného ostrova )
-parkovacie státia 3x
-oplotenie z každej strany-betónový plot alebo zelené oplotenie
-predný kazetový plot
-terénna úprava pozemku
-kolaudácia v rámci štandardu
-kompletné vybavenie domu bez kuchynskej linky

Predpokladaná kolaudácia 04/2026.

Dokončenie do štandardu od 10.000,-EUR.

Cena jednej bytovej jednotky 259.000,-EUR v stave holodom vrátane parkovacích miest 3x, bočného a zadného oplotenia.

Lokalita – Štvrtok na Ostrove-rýchle napojenie na D4, tichá a bezpečná lokalita a ideálne miesto pre rodinný život s blízkosťou mesta.

Tento 5-izbový rodinný dom ponúka moderné, priestranné a úsporné bývanie s praktickými detailmi, ktoré ocení každá rodina.

Dineva Real Estate
0948437798
dineva@dineva-realestate.sk

V rámci projektov spolupracujeme s najlepšími architektmi v okolí, ktorí Vám navrhnú a pomôžu zariadiť Váš nový domov.
Copyright Dineva Real Estate – text a fotografie sú autorským dielom a majetkom Dineva Real Estate,s.r.o.
Informácie o nehnuteľnosti
  • Štát: Slovensko
  • Kraj: Trnavský kraj
  • Okres: Dunajská Streda
  • Obec: Štvrtok na Ostrove
  • Stav: Novostavba
  • Energetický certifikát: A
  • Orientácia: Severná
  • Počet izieb: 5
  • Plocha pozemku: 400 m²
  • Úžitková plocha: 105 m²
  • Zastavaná plocha: 100 m²
  • Konštrukcia: Tehlová
  • Umiestnenie: Intravilán
  • Elektrina: Áno
  • Kanalizácia: Áno

Zaujala vás táto nehnuteľnosť?

NAPÍŠTE NÁM. NÁŠ TÍM JE VÁM K DISPOZÍCIÍ.

Mohlo by sa vám páčiť

125,000 

Dunajská Streda

60m²

1i.

DOHODNITE SI STRETNUTIE

Vložte dopyt alebo ponuku

Hľadáte konkrétny typ nehnuteľnosti ale nemáme ho v ponuke alebo naopak nám chcete ponúknuť svoju nehnuteľnosť? Vyplňte formulár nižšie a my sa vám ozveme.

Vložte dopyt alebo ponuku

Hľadáte konkrétny typ nehnuteľnosti ale nemáme ho v ponuke alebo naopak nám chcete ponúknuť svoju nehnuteľnosť? Vyplňte formulár nižšie a my sa vám ozveme.